Маленькая квартира для студентки в осенних тонах: проект Анастасии Холопцевой
Дизайнер Анастасия Холопцева оформила для девушки-студентки квартиру площадью 32 кв. метра на втором этаже московской сталинки. Маленькую угловую квартиру с дополнительным окном удалось превратить из однокомнатной в двухкомнатную, с кухней-гостиной и небольшой отдельной спальней. Пространство получилось легким и светлым, с обилием деталей цвета теплого дерева и без избыточного декора.
По теме: Квартира 29 кв. метров для студентки Сорбонны: проект Екатерины Володиной

Анастасия ХолопцеваДизайнер интерьера
Сайт


«Как любой старый фонд, квартира требовала серьезного демонтажа всех ненесущих стен и пола, переваривания и замены коммуникаций, — вспоминает автор проекта. — Нам нужно было умудриться в совсем небольшой квартире организовать уютное и комфортное пространство для жизни молодой девушки. Все стены и потолок выкрашены краской off-white. В предметах мебели, дверях и инженерной доске использован цвет теплого светлого дерева. Акцентом, притягивающим взгляд, стали янтарные стеклоблоки между санузлом и основным пространством. Они просматриваются практически из любой точки квартиры и делают весь интерьер более жизнерадостным. Пространство за изголовьем кровати украшают обои Casamance под лен натурального цвета. Для санузла мы выбрали разную современную плитку в теплом белом оттенке и в цвете охры».


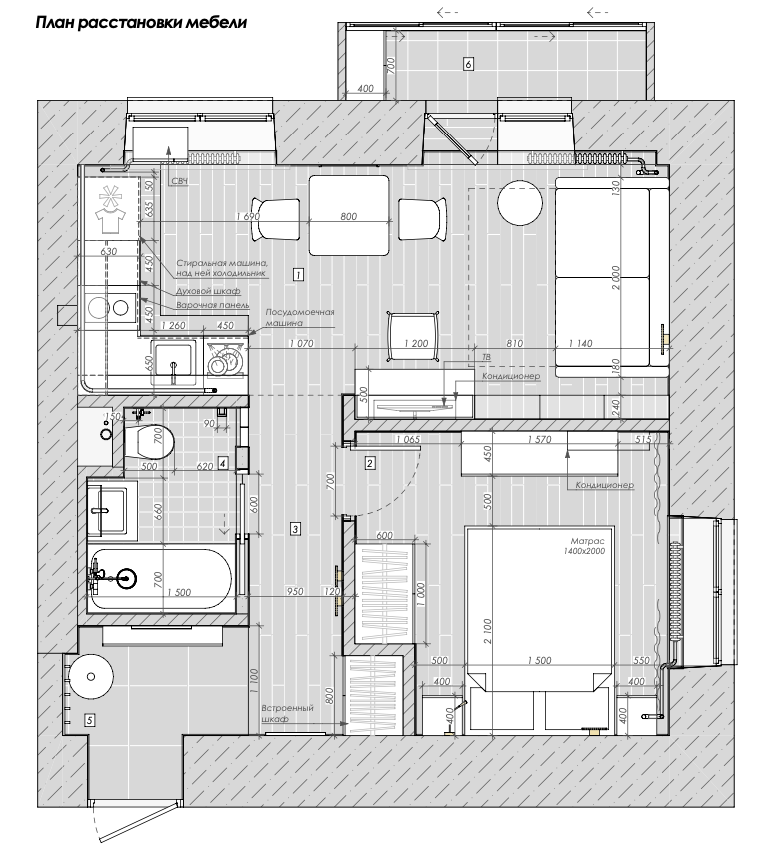
«Мы согласовали не только перепланировку, но и переход с газа на электрику, отрезали газовые трубы и получили немного дополнительного пространства и эстетические бонусы. Маленькая кухня отвечает всем современным требованиям: в ней есть узкая посудомоечная машина и духовка, двухкомфорочная варочная поверхность. В колонке поместился не только холодильник, но и стиральная машина, а в нижних шкафчиках разместили фильтр обратного осмоса».


«Всю корпусную мебель, за исключением гардеробного шкафа в спальне, делали на заказ, чтобы не потерять ни одного сантиметра. Мягкую мебель выбрали у российских производителей, руководствуясь критерием „средняя цена при хорошем качестве“. Потратили немалое время на проектирование многофункционального стеллажа в гостиной. Он занял всю стену, поэтому должен был быть легким визуально, иначе он перетянул бы на себя все внимание, но при этом на него возлагалось много функций. Мы убрали заднюю стенку, скомбинировали открытые и закрытые секции, вписали рабочее место, а сверху спрятали кондиционер».









Самое главное в нашем Telegram — для тех, кто спешит



